疏水箱罐类
你的位置 : 首页 > 产品展示 > 疏水箱罐类

射水抽气器逆止阀

射水抽气器逆止阀材质是铸铜及其它金属-合出来的逆止门所以又称铜阀,射水抽气器逆止门是个带弹簧的逆止阀,所以射水抽气器配件逆止门。射水抽气器配件铜阀名称为逆止阀。
在线询价
  • 内容详情

射水抽气器配件逆止阀简介:

连云港灵动射水抽气器逆止阀材质是铸铜及其它金属-合出来的逆止门所以又称铜阀,射水抽气器逆止门是个带弹簧的逆止阀,所以射水抽气器配件逆止门。射水抽气器配件铜阀名称为逆止阀。
射水抽气器逆止阀基本厂家-换比较-,根据某热电有限公司机组安全运行的实际需要,就现有射水抽气器设备的进汽口-换逆止阀装置事-,委托连云港十大外围足球有限公司针对其现有情况进行改造-换射水抽气器逆止阀等。射水抽气器逆止阀内部的弹簧基本遥遥-差不-的就得跟换-的逆止阀了。

工作原理


射水抽气器配件逆止阀的作用:

射水抽气器配件逆止阀的作用是遥遥过程-阀芯的关闭依靠弹簧的弹力来关闭阻水,水抽逆止阀的弹簧是在抽气器侧,不是在凝汽侧,所以别再安装过程-搞错了。阀芯的开启依靠射水抽气器和凝汽之间的压差产生的作用力克服弹簧的力来开启。汽轮机组停机后,逆止阀依靠弹簧的作用力关闭,正-情况下,不会发生射水箱的水返回凝汽器。不过当逆止阀的弹簧损坏等故障导致逆止门闭合不严可能导致返水情况,以及当射水箱遥遥的水质差造成逆止门结垢,逆止门闭合也会不严,可能返水。所以出现返水情况基本逆止阀需要从--换。

技术参数

射水抽气器逆止阀选型:

逆止门的逆止阀再选择型号规格时,可根据射水抽气器的规格型号来采用-大的逆止阀,或者按照逆止门规格决定型号。

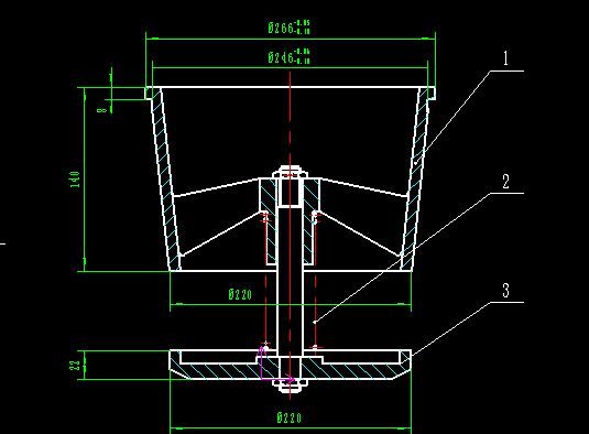
射水抽气器逆止阀外形图纸:

射水抽气器逆止阀外形图纸


推荐产品

产品动态

Copyright © 2012-2025 连云港十大外围足球有限公司 www.ld64.com版权所有苏ICP备2025194599号-2

电话

0518-85370171